应用介绍
软件介绍
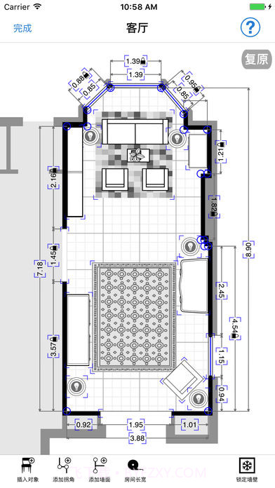
神奇家居平面图这款应用我最近体验了一下,真心觉得它在家居设计和空间规划上还挺有用的。值得一提的是,你可以通过拍照来测量房间,并自动生成平面图,这对像我这种懒得找设计师的人来说真的省了不少事。它支持多种文件格式导出,可以直接分享给朋友或者装修工人,方便极了。总之,想自己动手布置家居的朋友,强烈推荐试试这个软件。
使用场景
房屋装修前需要规划空间
对于家装行业的人士来说,它是个实用工具
可以和其他设计软件结合使用,比如在平面图基础上再用Photoshop进行细节调整,也可以把文件导入到CAD中继续加工。
版本亮点
让人容易上手,拍照就能开始
模块强大,可以节省找设计师的时间
能直接在手机上完成很多工作,省去纸质图纸
常见问题
如果软件出现问题该怎么办。
若遇到崩溃问题,可以尝试重启手机或更新到最新版本,通常能解决大部分问题。
如何确保测量精度。
在光线充足的环境下拍摄可以提高测量精度,同时多试几次不同角度也很有帮助。
初学者应该注意哪些拍摄技巧。
新手可以先尝试在熟悉的空间进行拍摄,多练习几次就会掌握技巧了。
编辑点评
编辑点评:神奇家居平面图作为生活实用,相比其他同类应用,它的测量精度更好,值得推荐。
使用指南
学习难度
对于新手来说,上手并不难,大概半小时就能熟悉基本功能。建议多试几次拍照测量,熟能生巧。
使用技巧
• 定期清理已导出的文件,避免占用手机空间
• 多试试不同角度测量房间,可以得到更好的效果
常见问题
• 初学者可能会对拍摄角度把握不准
• 如果房间光线不好,测量可能不准确




